Onondaga County Tax Foreclosure Real Estate Auction: October 9, 2025 at 10AM
Location: Online Only at NYSAuctions.com. Bidding will open Tuesday, October 7 at 10AM 
Bidders Seminar: Watch NOW

Quick Links:
Brochure
Removals
Lead Based Paint Booklet
Towns Contact Information
Fair Housing Notice
Property Showings: DO NOT TRESPASS, DRIVE BY ONLY
Internet Bidding Packet Please note: For bidding Approval, we will email you a Google form to complete. Then, Link to e-signature Internet Bidding Packet will be sent via email. Your online account Approval will update to Yes; when the auction opens for bidding on Tuesday, October 7.  

 

Auction Info

Onondaga County Tax Foreclosure Real Estate Auction: October 9, 2025 at 10AM
Location: Online Only at NYSAuctions.com. Bidding will open Tuesday, October 7 at 10AM 
Bidders Seminar: Watch NOW

Quick Links:
Brochure
Removals
Lead Based Paint Booklet
Towns Contact Information
Fair Housing Notice
Property Showings: DO NOT TRESPASS, DRIVE BY ONLY
Internet Bidding Packet Please note: For bidding Approval, we will email you a Google form to complete. Then, Link to e-signature Internet Bidding Packet will be sent via email. Your online account Approval will update to Yes; when the auction opens for bidding on Tuesday, October 7.  

 


Categories:
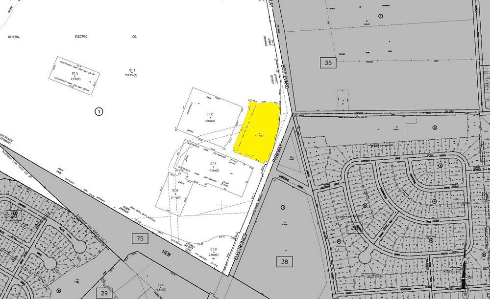
Office building, 2 story, built 1945+/-, 28410+/- sq. ft., and 1 story, built 1945 +/-, 7750+/- sq ft.
Tax Map #: 031.-01-01.7
Lot Size: 4.13 +/- Acre X
School District: Liverpool CSD
Full Market Value: $800000
Inspection: DO NOT TRESPASS. Drive by only.
School Tax Due: $
Village Tax Due: $
County Tax Due: $
Down Payment Calculator
 

Former Deed
Real Property Tax Service printout

Track this Item

More Details
Office building, 2 story, built 1945+/-, 28410+/- sq. ft., and 1 story, built 1945 +/-, 7750+/- sq ft.
Tax Map #: 031.-01-01.7
Lot Size: 4.13 +/- Acre X
School District: Liverpool CSD
Full Market Value: $800000
Inspection: DO NOT TRESPASS. Drive by only.
School Tax Due: $
Village Tax Due: $
County Tax Due: $
Down Payment Calculator
 

Former Deed
Real Property Tax Service printout

Track this Item

Closes On: Oct 9, 2025
12:42:00 PM – 12:43:00 PM EST

Starting Bid:
$100.00

Auction Type: One Lot
Quantity: 1

Minimum Next Bid: $100.00 bid increments


Login to Bid